茨城県取手市 鉄筋コンクリート造平屋建等耐震診断
実施年月 :2013年2月 建物住所:茨城県取手市
調査対象:鉄筋コンクリート造(RC造)平屋、軽量鉄骨造平屋
建築年 :1968年
実施内容:耐震診断・耐震設計・耐震改修工事監理
茨城県取手市にある鉄筋コンクリート造および軽量鉄骨造の平屋建て建物において、県の助成金制度を活用し、耐震診断から耐震設計、改修工事の監理までを一貫して行いました。
平屋建ての建物では、室内床において不同沈下の測定を行います。
不同沈下とは、建物の重みなどにより、地盤や建物が部分的に不均一に沈下したり、滑動が生じたりする現象を指します。
不同沈下が生じている場合、建物設備の不具合や日常利用における支障といった実害が発生するだけでなく、建物全体の重量バランスが変化することで接合部に過度な応力が生じたり、雨仕舞の悪化による躯体の劣化・損傷につながるおそれがあります。

また、鉄骨造の建物では、柱脚部と基礎がアンカーボルトにより適切に緊結されているかを確認するため、必要に応じて掘削を行い、目視により劣化状況や施工状況、アンカーボルトの径および本数などを確認します。
これは、地震時などに建物が水平力を受けた際に、柱脚部が十分な引き抜き抵抗力を有しているかを確認するためです。
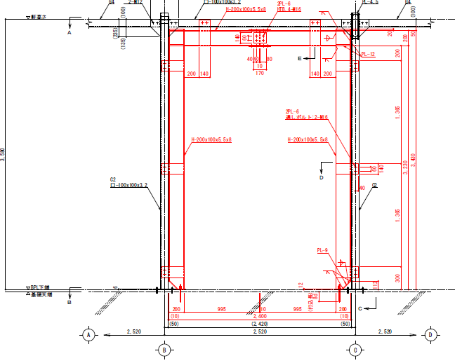
本件は鉄骨ラチス構造による方形屋根を有し、意匠性の高い天井によって広い室内空間が確保された建物でした。耐震診断においては、このラチス構造についても耐力計算を行い、構造性能の評価を実施しています。
各種計算の結果、本件では耐震診断のis値がX方向、Y方向ともに0.6を下回る結果となったため、耐震設計および改修工事を行いました。改修にあたっては、既存の柱・梁に新設の鉄骨柱および梁を添わせることで断面性能を高め、必要な耐震性能の確保を図っています。
建物の耐震性能に不安をお持ちの場合や、現在の耐震性を客観的に確認したいとお考えの際は、耐震診断の実施をご検討ください。
当協会では、建物の用途や構造条件に応じた耐震診断に関するご相談を承っております。










Copylight © 2010 Japan Seismic Diagnosis Association. All rights reserved.