耐震診断 ホーム > 耐震診断実績一覧 > 東京都港区 商業ビル(SRC造10階建て)耐震診断

東京都港区 商業ビル(SRC造10階建て)耐震診断

実施年 :2012年                                   所在地 :東京都港区
建物概要:鉄骨鉄筋コンクリート造(SRC造)10階建て、延床面積968㎡
建築年 :1976年
実施内容:耐震診断・耐震設計・耐震改修工事監理

東京都港区にある鉄骨鉄筋コンクリート造10階建ての商業ビルにおいて、東京都の助成制度を活用し、耐震診断から耐震設計、第三者機関による評定の取得までを一貫して実施しました。

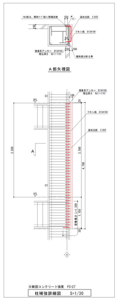
耐震診断後に耐震設計へ進む際には、建物の構造強度を確保することが基本となりますが、単に補強柱やブレースを数多く設置すればよいというものではありません。建物の利用状況や機能性を踏まえた検討が重要であり、構造強度の確保に加え、意匠性にも十分配慮する必要があります。


本件は路面性が高く、多くのテナントが入居する貸し商業ビルであることから、所有者様のご意向を踏まえ、現行の耐震基準を満たす構造強度を確保しつつ、建物の美観を損なわず、テナントの利便性にも配慮した耐震設計を行いました。

なお、本建物は旧耐震基準で建設されており、階段室まわりなどにコンクリートブロック造(CB造)の壁が用いられていました。CB造の壁は主要構造部には該当せず、耐震診断における構造計算の直接の対象とはなりませんが、施工状況によっては上階スラブと十分に緊結されていない場合があり、地震時に転倒・倒壊するおそれがあります。
本件では、こうした点も踏まえ、すべてのCB造壁を上階スラブに固定する設計とし、構造体の耐震性向上に加えて、建物全体の安全性確保を図りました。

建物の耐震性能に不安をお持ちの場合や、現在の耐震性を客観的に確認したいとお考えの際は、耐震診断の実施をご検討ください。
当協会では、建物の用途や構造条件に応じた耐震診断に関するご相談を承っております。

耐震診断

外壁調査

その他業務内容

日本耐震診断協会について

採用情報

コラム